Vai all’indice principale

Richiedi un’offerta

Scaffali per pallet

pallet rack with mezzanine floor

Compilate il maggior numero possibile di campi e cliccate su "Invia richiesta". È possibile inserire ulteriori informazioni per una richiesta estesa o un'offerta individuale alla fine del modulo, alla voce "Informazioni aggiuntive".

Dati generali:
Cosa volete immagazzinare?
Struttura dello scaffale
Installazione/utilizzo
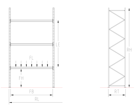
Dimensioni dello scaffale:
(Opzionale, si veda la legenda per la spiegazione delle unità).
Capacità di carico:
(Fare riferimento alla legenda per la spiegazione delle unità)
Per installazione all'esterno con tetto:
Colore dello scaffale:
Montaggio:
Approfittate del montaggio a regola d'arte da parte delle nostre squadre di montatori OHRA.
Informazioni aggiuntive
Absenden